Skreddersydd dusjløsning

På INR har vi designet og konstruert skreddersydde dusjløsninger siden 1988, og vi er stolte av å kunne tilby deg en helt unik løsning – laget på millimeteren til akkurat ditt bad. Tilpasninger i bredde og høyde på dusjløsningene i vårt grunnsortiment kan du i de fleste tilfeller gjøre selv i Studio. For å bestille tar du med det ferdige underlaget til nærmeste forhandler.

Mer avanserte løsninger – som tilpasninger til skråtak eller utsparinger av ulike slag i glasset – krever en tegning, som cad-avdelingen vår i Malmø lager kostnadsfritt. Produksjonstid etter godkjent tegning er normalt cirka 4-5 uker. Ta kontakt med en forhandler som hjelper deg videre.

Åpne Studio

 

Dusjmodellen Arc 20 Frame XL har glass som er tilpasset den flislagte sitteplassen. Her er skinnen elegant felt inn i flisene, men den kan også monteres utenpå ved å limes eller skrus fast.

Basert på målene dine utarbeider vår CAD-avdeling en tegning som du godkjenner før produksjonen starter.

Se mulighetene

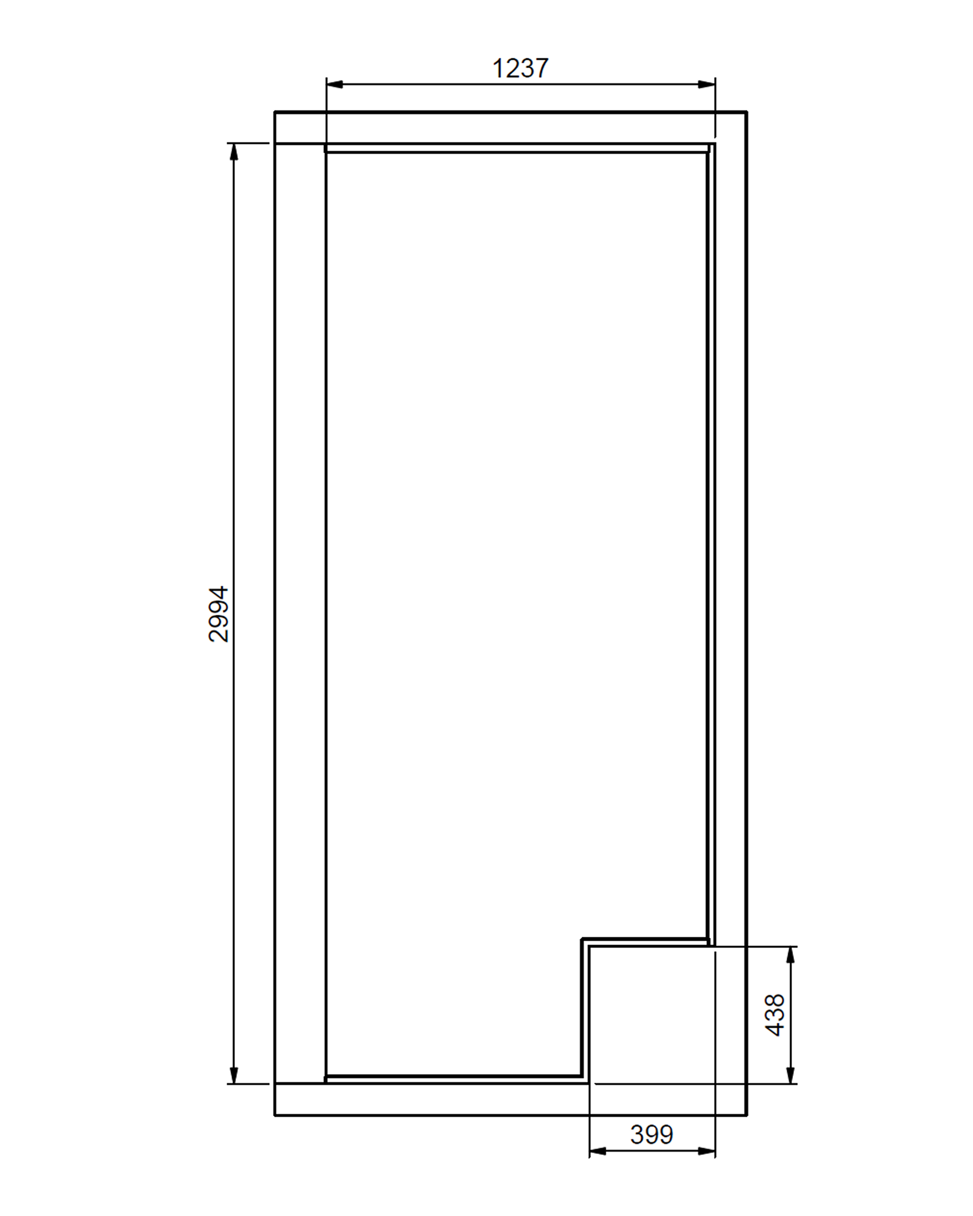
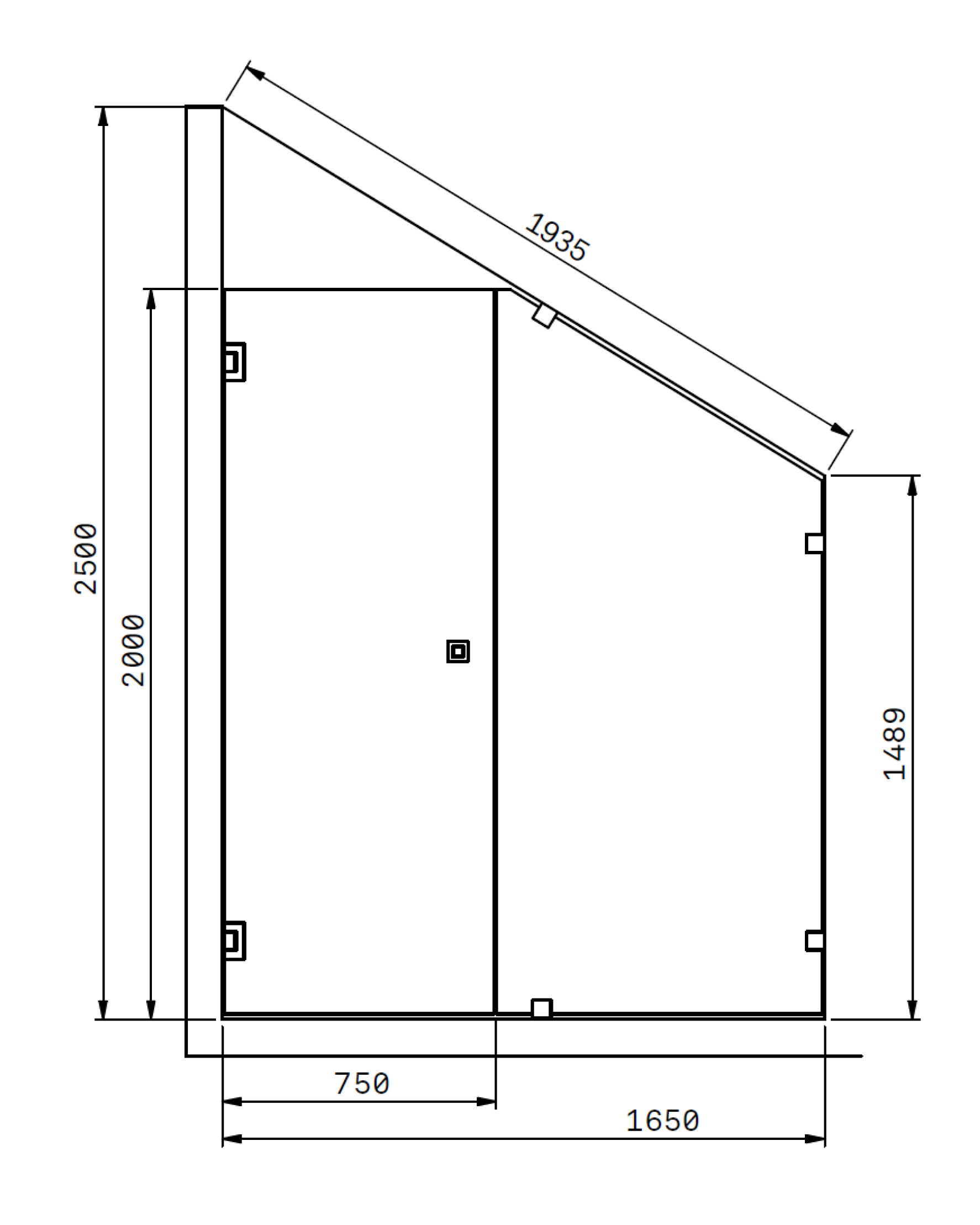
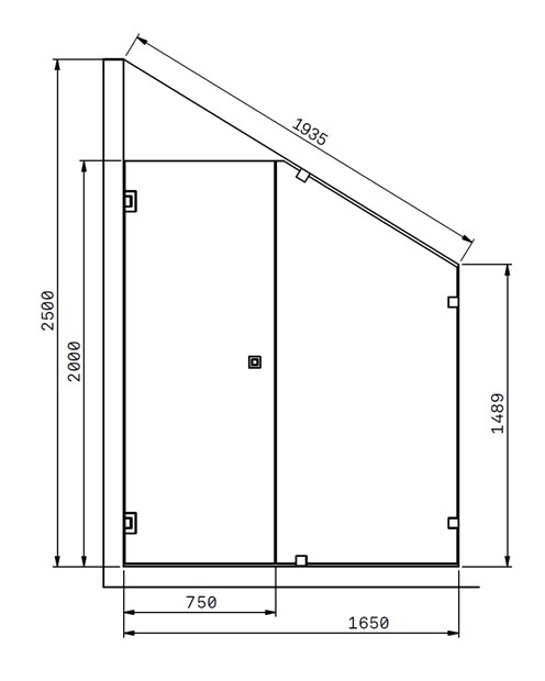
Slik måler du en nisje med skråtak

Mål opp dusjrommet nøye (alltid etter at det er ferdig flislagt) og ta med målene til din forhandler. I løpet av kort tid får du et tegningsforslag som vår CAD-avdelingen har laget – kostnadsfritt. Produksjonstiden etter godkjent tegning er normalt ca 4-5 uker. Bruk gjerne måltakingsskjemaet.

 

Skråtak venstre

Skråtak høyre

Tegningseksempler

Design ditt baderom i 3D

I vårt 3D-studio kombinerer du dusj og møbler med fliser i granittkeramikk. Tilpass mål, farger og designvalg – og ta med deg det komplette bestillingsunderlaget til en av våre forhandlere.

Relatert

Alle LINC-veggprofiler har plass for rørgjennomføring opp til 35 mm fra veggen.

Rørgjennomføring dusjvegg

I prinsippet kan alle dusjvegger i seriene våre Arc, Edge og Linc monteres, selv om det går vannrør langs veggen.

Se mer

Dusjserier

Bli kjent med våre dusjserier med ulike tykkelser på glass og med ulike valgmuligheter. De fleste av våre dusjer har kostnadsfri måltilpasning.

Se mer

Guide: Slik velger du dusjvegg

Dusjvegg i nisje, dusjhjørne, dusjvegg midt på vegg eller dusjkabinett? La oss hjelpe deg når du skal velge dusjvegg.

Se mer