Lys, rom og mørk eik i Paul Reys bad

Midt blant de skånske rapsengene, like utenfor Lund, har artisten og låtskriveren Paul Rey og hans kone Dalia skapt et hjem for familien. Eneboligen på ett plan, kjøpt i 2023, fanget interessen med sine grønne omgivelser, nærheten til byen og muligheten til å forme noe eget. Etter en totalrenovering har boligen fått et uttrykk i jordnære toner, med en rolig og harmonisk helhet – et sted for samvær og nærvær.

Badet er en viktig del av helheten. Lyse, luftige flater møter beige nyanser og mørke treinnslag som tilfører dybde og kontrast. Resultatet er et tidløst og personlig rom. Les mer om materialvalg, planløsning og detaljene som definerer uttrykket.

Paul Rey.

Core Nema i Dark Oak kombinert med en spesialbygget servant i Dekton Taga.

Da familien tok over huset, var badet delt i to. Den fremre delen rommet selve badet, mens en skillevegg skjulte vaskerommet og ett av rommets vinduer. Ved å flytte vaskerommet til en annen del av boligen og fjerne veggen, åpnet de opp for et større bad med bedre flyt av naturlig lys og plass til en romslig dusjsone. Beige fliser på vegger og gulv danner en rolig base i rommet. Langs bakveggen i dusjen løper en integrert, belyst nisje, og ved siden av dusjen er håndkletørkerne Line plassert.

Dusjveggen Arc 20 Frame XL, som strekker seg fra gulv til tak, blir badets naturlige blikkfang.

Dusjveggen ble installert før flisleggingen, noe som gir et sømløst uttrykk.

Håndkletørkeren Line, plassert inntil dusjen, gir et stilrent uttrykk.

Til dusjløsningen valgte Paul og Dalia 8 mm klart glass, med en tydelig visjon om et så sømløst uttrykk som mulig. Dusjveggen Arc skulle gå fra gulv til tak, uten synlige beslag, for å bevare følelsen av lys og rom. For å oppnå dette uttrykket ble dusjveggen montert før badet ble flislagt.

– Det var en løsning som krevde godt samarbeid med dyktige og pålitelige håndverkere, men vi er veldig glade for at vi fulgte visjonen vår. Resultatet ble akkurat slik vi hadde håpet.

Med servantskapet Core Nema i Dark Oak får baderommet en varm kontrast mot de lyse tonene.

Det integrerte grepet forsterker Core Nemas avskallede uttrykk.

I den fremre delen av badet står den doble servanten Core Nema, kombinert med et stort, spesialtilpasset speil. Valget av Dark Oak tilfører et naturlig materiale som skaper en tydelig kontrast til rommets lyse, beige toner. Dobbel servant var en naturlig del av planløsningen, og for å oppnå ønsket uttrykk valgte familien en spesialbygget servantløsning. For rikelig med oppbevaring har de også valgt en rekke veggskap Nema i Dark Oak, som rommer hverdagens behov og samtidig leder blikket videre mot den romslige dusjsonen.

Veggskapet i Dark Oak leder blikket videre gjennom baderommet.

Veggskapet Nema rommer alt som trengs til hudpleie, hårpleie og daglige rutiner.

Resultatet er et bad der hjemmets lyse og harmoniske uttrykk videreføres gjennom naturmaterialer, rolige toner og gjennomtenkte løsninger. Et rom der dagslyset slipper inn og trekker den grønne naturen utenfor tettere på. Paul og Dalia beskriver badet som sin egen spa-avdeling – et sted for å koble av, finne ro og hente ny energi.

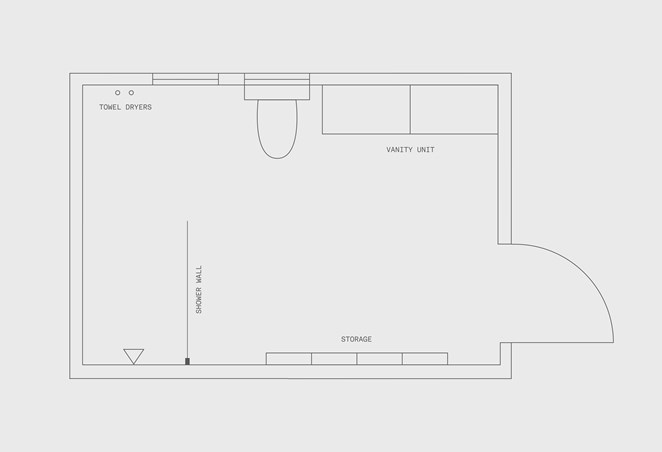
Plantegning for familiens baderom på 9,5 kvm.


Skap stilen


Produkter og materialer

Fliser Beige 60x60 fra Lunds Kakelvaruhus / Spesialtilpasset speil / Spesialbygget servant i Dekton Taga fra City Marmor / Pendelbelysning ved servant Foscarini Gregg Piccola / Servantmøbel, dusjvegg, veggskap og håndkletørkere fra INR


Relatert

Astrid Marie Vie

Bli med inn i et hjem inspirert av japandi– med varm minimalisme, eik i alle rom og en nøytral fargeskala som ustråler ro.

Se mer

Fors Kraftstasjon

La deg inspirere av et baderom der skandinavisk stillhet møter hundreårig industrifølelse.

Se mer

Mood Hay

En elegant palett der mørk eik møter kalkstein og varme bronsetoner. Utforsk dette Moodet og la det ligge til grunn for ditt nye baderom.

Se mer